







Office To Let Eastbourne
PROPERTY ID: 139696
PROPERTY TYPE
Office
STATUS
Available
SIZE
48-157 sq.ft
Key Features
Property Details
Gildredge Road is the main professional area of the town, where there are a number of Accountants, Solicitors, Surveyors, Estate Agents, Financial Advisors and Insurance Brokers. Eastbourne railway station is approximately 200 yards to the north with the pedestrianised shopping areas of Terminus Road and the Arndale Centre also close by. The property is on the western side of Gildredge Road, between the junctions of South Street and Hyde Road.
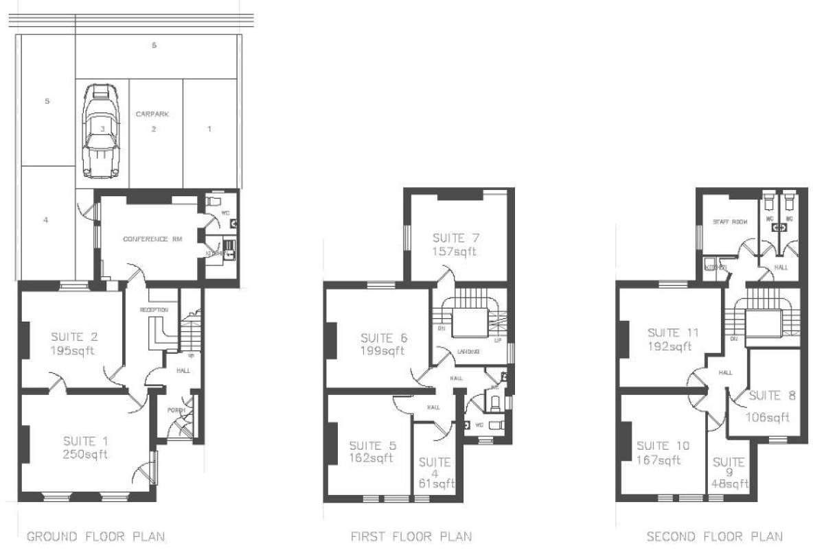
Serviced Offices With Parking To Let On Flexible And Inclusive Terms With 11 Self-contained Suites Ranging From 48 Sq Ft To 250 Sq Ft.
See Brochure For Full Information With Floor Plan.
Availability:
Suite 6: 199 Sq Ft On First Floor For £450 Pcm Available 1st September 2025
Suite 8: 106 Sq Ft On Second Floor For £255 Pcm Available December 2025.
Gildredge Road Is The Main Professional Area Of The Town, Where There Are A Number Of Accountants, Solicitors, Surveyors, Estate Agents, Financial Advisors And Insurance Brokers. Eastbourne Railway Station Is Approximately 200 Yards To The North With The Pedestrianised Shopping Areas Of Terminus Road And The Arndale Centre Also Close By. The Property Is On The Western Side Of Gildredge Road, Between The Junctions Of South Street And Hyde Road.